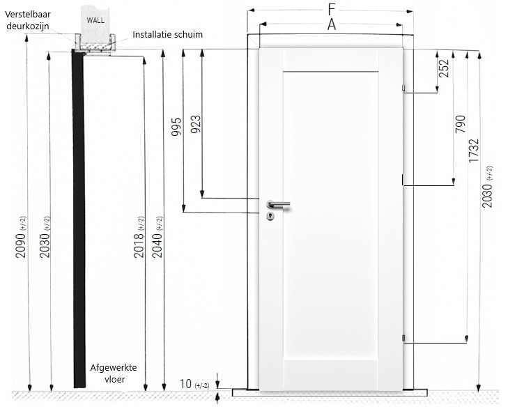
Deurkozijnen Verstelbaar OPDEK bekleding 80mm – SERIE DR

VANAF 136 €

Contact us

    What is 3 x 1 ? Refresh icon

    Beschrijving

     

     

         LET OP!

            De zichtbare tabel bevat alleen de prijzen voor de 60mm omlijsting deurkozijnen.

              Hieronder staan de prijzen voor de 80mm omlijsting deurkozijnen.

       *Toeslag voor de omlijsting van het kozijn van 80mm

            – “Fresh +” extra 16 €

               -” CPL”     extra 24 €

    – “PREMIUM”    extra 24 €